
Nuevo convenio: ZWCAD Uruguay y APADUU
Desde ZWCAD Uruguay nos complace anunciar la firma de un nuevo convenio institucional, en esta oportunidad con la Asociación Profesional
Descubre por qué empresas líderes como Estudio Sitio Arquitectura y Laboratorio Spefar confían en nuestra tecnología para sus proyectos más exigentes.

Desde ZWCAD Uruguay nos complace anunciar la firma de un nuevo convenio institucional, en esta oportunidad con la Asociación Profesional

A principios de setiembre viajamos a Guangzhou (China) con el fin de asistir al evento ZWORLD 2024 desarrollado por ZWSOFT

Nos complace anunciar el lanzamiento de ZWCAD 2025, la última versión de nuestro aclamado software CAD que lleva la experiencia

Video análisis por un profesor universitario y arquitecto. En el vídeo presentado a continuación, Sergio Manes (arquitecto y profesor

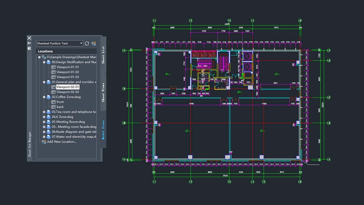
La primera gran actualización (gratuita) de ZWCAD 2024 ya está aquí y ha introducido una gran cantidad de novedades y

ZWSOFT, un fiable proveedor de soluciones CAx todo-en-uno, ha anunciado el lanzamiento de ZWCAD 2024, la última versión de su

El 17 de febrero de 2022, ZWSOFT creó una empresa conjunta en colaboración con CAPOL, con el objetivo de proporcionar