ZW3D - Unificar el diseño, simulación y fabricación para mejorar la productividad.

Licencia perpetua desde USD 3,0001.

Qué es ZW3D

CAD 3D ágil para ingeniería

Con capacidades de CAD 3D estándar de la industria, ZW3D ofrece una solución accesible con licencia perpetua y opciones de actualización flexibles. Su alta compatibilidad ayuda a integrar datos y a aprovechar archivos heredados, facilitando la colaboración entre equipos y proveedores.

Con una interfaz intuitiva, tu equipo puede empezar rápido y con una curva de aprendizaje corta. Además, ZW3D mantiene un rendimiento estable y ágil incluso en equipos de gama baja.

CAD 3D para diseño de maquinaria general

Diseño de piezas

Con métodos de modelado mixtos, las capacidades de diseño de piezas de ZW3D le permiten crear y modificar piezas complejas con precisión y rapidez, mejoradas con módulos profesionales para tareas de diseño  avanzadas.

Modelado profesional y preciso para el diseño de piezas
• Diseño paramétrico – Cree y modifique modelos complejos basados en relaciones y restricciones predefinidas.
• Edición directa – realice cambios rápidos sobre la marcha sin restricciones paramétricas.
• Modelado de superficies – Cree superficies lisas con precisión y facilidad, con un rico conjunto de métodos de creación y edición de superficies.
Módulos a medida para escenarios avanzados

• Herramientas avanzadas – Incluyen chapa metálica, diseño estructural y módulos especializados como diseño de arneses, ECAD/MCAD, tuberías, moldes y electrodos.

Desarrolle y gestione variaciones de diseño con facilidad

• Configuración múltiple – Compare y ajuste diseños para explorar alternativas, mientras gestiona variaciones de producto dentro de un único archivo.

Comunique diseños complejos con sencillez

• Visualización basada en Web – exporte fácilmente a HTML para compartir rápidamente y acceder sin problemas a modelos detallados en un navegador ligero.

Diseño de ensamblajes

ZW3D permite a los usuarios gestionar ensamblajes complejos sin esfuerzo, ofreciendo herramientas inteligentes que aceleran el diseño, garantizan una integración precisa y mejoran la comunicación con animaciones intuitivas para presentaciones más claras y eficaces.

Rendimiento extremadamente fluido para manejar ensamblajes complejos

• Motores de visualización avanzados – ensamblaje fluido incluso con hasta 20.000 componentes con el respaldo de una tecnología ligera.

Herramientas inteligentes para acelerar el diseño de ensamblajes
• Ensamblaje flexible – Adapte y optimice fácilmente la colocación de componentes dentro de un modelo de ensamblaje con actualizaciones automatizadas de restricciones.
• Sujetador inteligente – Automatice la identificación e inserción de los sujetadores correctos para acelerar el proceso de ensamblaje.
• Biblioteca de piezas estándar – Bibliotecas de piezas estándar completas, fáciles de usar y de alta calidad con flexibilidad personalizable.
Montaje preciso e impecable
• Comprobación de interferencias – Identifique y resuelva los conflictos entre componentes, garantizando un ajuste correcto dentro del ensamblaje y minimizando los errores durante la fabricación.
• Actualizaciones asociativas – Preserve la integridad del diseño garantizando que cualquier cambio en un componente actualice automáticamente todas las piezas relacionadas en el ensamblaje.
Presentación clara del concepto con animación intuitiva

• Vistas explosionadas y animaciones – visualice las estructuras internas y las secuencias de ensamblaje en acción para mejorar la comunicación del diseño.

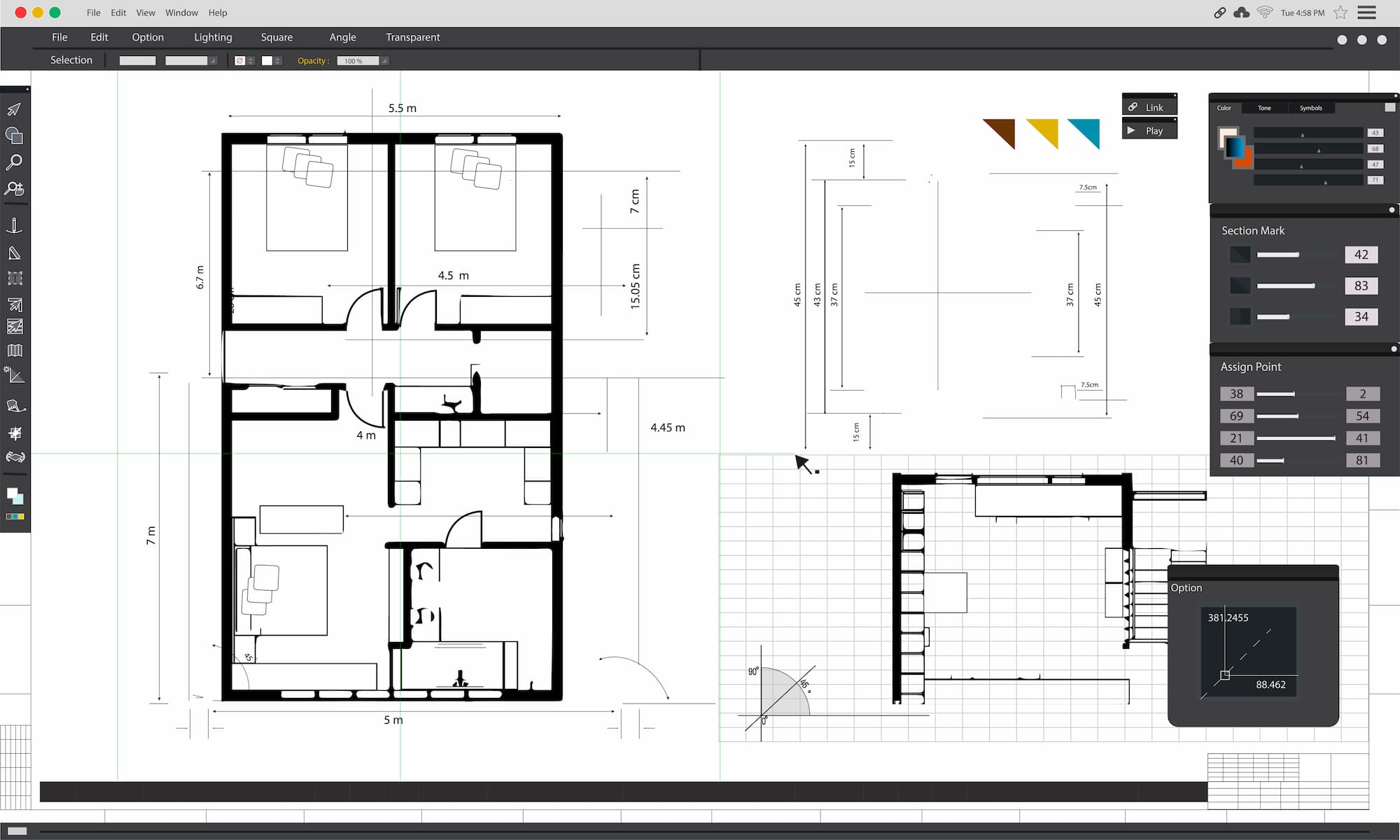
Dibujo 2D

ZW3D agiliza la creación de dibujos 2D mediante la automatización de tareas repetitivas. Con una rápida generación de dibujos y enlaces asociativos a modelos 3D, garantiza resultados rápidos, precisos y coherentes.

Actualizaciones de datos asociativos para una intención de diseño coherente
• Sincronice dibujos 2D con modelos 3D – Vincule sin problemas modelos 3D con dibujos ZWCAD DWG/DXF con actualizaciones asociativas en tiempo real.
• PMI – Asocie datos de fabricación con modelos 3D, asegurando precisión y consistencia a través del diseño y la producción.
Creación de dibujos 2D intuitiva y automatizada
• Bibliotecas de anotaciones y símbolos – Automatice y simplifique la creación de anotaciones y símbolos estandarizados para una documentación precisa del diseño.
• Salida por lotes y dibujo automático – agilice la documentación precisa con el dibujo automático y una variedad de herramientas de anotación.
Generación de dibujos 2D de alta velocidad

• Tecnología de proyección avanzada – creación rápida de dibujos 2D precisos y listos para producción.

Simulación (CAE)

Solución integrada de diseño y simulación para optimizar los diseños y tomar decisiones con conocimiento de causa.

Perfeccione su diseño desde el principio con información precisa
• Entorno de trabajo unificado – Muévase sin problemas entre el diseño y la simulación en un entorno unificado, minimizando el trabajo manual y los errores.
• Continuidad de datos coherente – Garantice un flujo de datos preciso entre CAD y CAE, reduciendo errores y ofreciendo resultados de simulación fiables.
• Gestión de costes optimizada – Sustituya la necesidad de un costoso software de simulación independiente, reduciendo los costes de software y acelerando los flujos de trabajo.
Herramientas de simulación profesionales para escenarios específicos
• Herramientas de simulación integrales – admiten análisis estructurales, de vibraciones, de transferencia de calor y de fatiga, optimizando los diseños para mejorar la eficiencia y reducir los costes.
• Rendimiento validado – precisión demostrada mediante una amplia verificación y una aplicación satisfactoria en diversos retos industriales del mundo real.
Funciona con modelos heredados y se conecta con la industria
• Intercambio de datos sin fisuras – Admite más de 20 formatos de archivo estándar y comerciales, incluida la importación y exportación de los formatos BDF e INP.
• Integración de modelos heredados – Importe fácilmente modelos de simulación existentes sin necesidad de volver a simular o convertir formatos.
• Integridad de datos garantizada – Mantenga la precisión de los datos y evite pérdidas durante las conversiones de formato, ofreciendo resultados de simulación fiables y precisos.
Datos precisos y acoplamiento multifísico avanzado

• Acoplamiento multifísico avanzado – Facilita la transferencia fluida de datos entre disciplinas, como la estructural y la térmica.

Fabricación (CAM)

Flujo de trabajo de diseño a fabricación sin fisuras para una producción eficiente.

Producción de alta calidad con estrategias de mecanizado integrales
• Mecanizado en 2-5 ejes – estrategias integrales para los procesos de desbaste, acabado y taladrado, que permiten mecanizar diversas piezas mecánicas con gran precisión.
• VoluMill™ CAM (Complemento) – Mecanizado de desbaste eficiente con hasta 5 veces más eficiencia de procesamiento y reducción del 80% en costos de herramientas usando tecnología avanzada de cortadores HSS/Carburo.
• Post-Procesado – Post-procesado fácilmente editable para adaptarse a sistemas CNC comunes, cumpliendo con diversos requisitos de máquinas herramienta con flexibilidad.
Colaboración perfecta de diseño a manufactura

• Potentes capacidades CAD integradas – Las trayectorias de herramientas CAM se sincronizan con cambios CAD, y archivos de terceros son editables con actualizaciones vinculadas de trayectorias.

Precisión de mecanizado comprobada con herramientas avanzadas de simulación

• Verificación y Simulación – Detecta problemas potenciales y asegura producción precisa mediante mecanizado confiable con verificación de trayectorias y simulación completa de máquina.

Colaboración

Gestión simplificada de datos de producto que permite diseño colaborativo, control de datos y lanzamientos dentro de la plataforma ZW3D.

Impulsa la productividad en I+D con diseño colaborativo
• Totalmente integrado en ZW3D – Completa tareas de diseño de producto, colaboración en equipo y lanzamiento de datos dentro de la interfaz 3D familiar, todo en una plataforma unificada.
• Acceso basado en web – Acceso en tiempo real a datos de definición de producto vía navegador sin instalación de software. Trabaja en cualquier dispositivo, en cualquier lugar.
• Espacio de trabajo compartido – Carpetas compartidas con estructura clara y jerárquica aseguran que todos accedan a los mismos archivos organizados.
• Reutilización de componentes en ensambles – Integra subconjuntos o partes diseñados por miembros del equipo, con actualizaciones asociativas que mantienen consistencia y permiten ingeniería concurrente.
Optimiza el control de procesos para mejorar calidad
• Control de iteraciones de diseño – Cambia fácilmente entre etapas y evalúa progreso para decisiones más rápidas.
• Comentarios y revisiones organizados – Feedback claro y seguimiento de progreso, con todos los comentarios capturados sistemáticamente como referencia.
• Clonación de ensambles  – Clona ensambles para crear rápidamente variaciones con ajustes menores.
• Historial de aprobación rastreable – Captura cada paso del proceso de aprobación, incluyendo envíos, etapas, aprobadores, fechas y comentarios.
Asegura datos mediante gestión unificada
• Control preciso de acceso – Sistema flexible y escalable de control de acceso basado en estado de proyecto y roles.
• Gestión de versiones – Actualizaciones menores automáticas mediante check-in/check-out. Gestiona lanzamientos mayores con controles actualizados.
• Sincronización en tiempo real – Rastrea y resalta cambios al instante, proporcionando sincronización perfecta y acceso inmediato a versiones actualizadas.

Qué es ZW3D

CAD 3D ágil para ingeniería

Con capacidades de CAD 3D estándar de la industria, ZW3D ofrece una solución accesible con licencia perpetua y opciones de actualización flexibles. Su alta compatibilidad ayuda a integrar datos y a aprovechar archivos heredados, facilitando la colaboración entre equipos y proveedores.

Con una interfaz intuitiva, tu equipo puede empezar rápido y con una curva de aprendizaje corta. Además, ZW3D mantiene un rendimiento estable y ágil incluso en equipos de gama baja.

Inversión inteligente, mayor valor

Licencia perpetua

Adquiere ZW3D con una sola compra, sin pagos recurrentes. Ideal para equipos que buscan invertir una vez y usarlo a largo plazo.
Esto te permite ahorrar a largo plazo y trabajar sin interrupciones, en lugar de depender de actualizaciones forzadas

Disponibilidad en escritorio

Trabaja sin conexión cuando lo necesites y mantén tus proyectos más protegidos con una solución de escritorio.
Rendimiento ágil incluso en tareas pesadas. Personaliza el software según tu operación, sin pagos continuos por suscripción.

Precios competitivos

Obtén CAD/CAM de alto rendimiento a un precio accesible y con opciones de cotización según tu implementación.
Obtienes capacidades potentes y completas sin sacrificar valor ni productividad.

Política de actualización flexible

Actualiza cuando te convenga: cambia de versión sin penalizaciones y mantén la continuidad del trabajo.
Con esta flexibilidad, puedes mantenerte al día con nuevas funciones mientras administras el presupuesto de forma eficiente.

Integra datos heredados y colabora sin fricción

Compatibilidad de formatos

Compatible con más de 25 formatos de importación/exportación.

Resultados de conversión precisos

Conserva atributos, vistas y PMI; usa reparación automática hoy.

Continuidad del diseño

Accede al historial completo de modelado a través de IPX.

Continuidad del diseño

Accede al historial completo de modelado a través de IPX.

Edición directa y rápida

Modifica con rapidez geometría nativa e importada para iterar más rápido.

Experiencia técnica para fortalecer tu sistema de I+D

Estandarización del diseño

• Simplifica tareas repetitivas unificando plantillas, librerías y procesos.

• Mejora la consistencia, la reutilización y la eficiencia en proyectos y productos.

Sistema de diseño paramétrico

• Usa parámetros para ajustar características y comportamientos de forma sencilla.

• Permite iteraciones rápidas sin rediseñar desde cero y reduce tiempos de entrega.

Nuestros equipos técnicos y de consultoría colaboran estrechamente con tus ingenieros para implementar un sistema de I+D de alto desempeño. Aplicamos métodos probados para aumentar la eficiencia, la flexibilidad y la escalabilidad del equipo.

Nos eligen en Latinoamérica

Equipos y empresas confían en ZWSOFT en toda la región

Reconocido por excelencia e innovación

Incluido en los G2 Best Software Awards 2025, entre los Top 50 de Productos CAD y PLM.

Integra datos heredados y colabora sin fricción

Ssasb A
Ssasb A
Ingeniería Mecánica CAD
ZW3D reúne CAD y CAM en una plataforma, haciendo que el diseño y la manufactura sean mucho más eficientes.
Zulfadhli
Zulfadhli
Gerente Técnico
ZW3D ofrece un potente traductor de archivos que maneja múltiples formatos de manera eficiente y facilita la colaboración multiplataforma.
Syed R
Syed R
Gerente de diseño
ZW3D es fácil de usar y muy similar a NX. Nunca he tenido dificultades en el modelado; la mayoría de los comandos funcionan sin problemas.
Scroll al inicio